English Français Русский
学校章程
校情简介
学校领导
机构设置
院系设置
校史沿革
学校标识
党务公开
信息公开
学生就业
本科生招生
研究生招生
继续教育
International Students
学术组织
研究机构
学科建设
学报
学术期刊
学术文化
大夏学堂
本科生教育
研究生教育
高层次人才
教师名录
人才招聘
国际交流
港澳台交流
国际中文教育
上海纽约大学
国际本科教育
教育基金会
校友会
学生工作部
学生资助管理中心
心理健康教育与咨询中心
学生校长助理
校历
班车时刻表
当前位置: 首页 / 通知公告 / 正文
各位老师、同学:
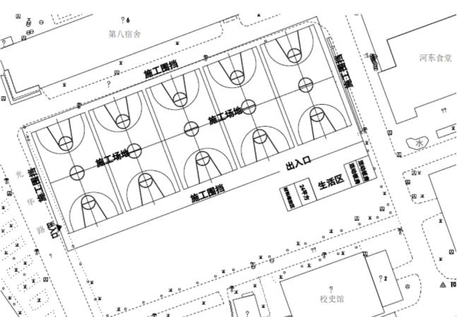
学校拟开展中北校区八舍前篮球场改造工程,改善室外体育场地设施条件。为保障施工和师生安全,结合项目施工作业需要,各参建方研究确定了该项目施工区域的围蔽方案,非施工人员请勿进入施工作业区域。具体告示如下:
围蔽范围:八舍南侧篮球场和绿地,详见图示。
施工时间:2021年8月-9月。
建设单位:基建处
施工单位:上海航宽体育场设施工程有限公司
监理单位:上海同济工程项目管理咨询有限公司
施工期间多有不便,敬请谅解!
施工场地布置图
基建处
2021年7月29日